Quartier am Molkenmarkt Block B/1, Berlin

Wettbewerb 1. Preis, 2025

Nicht-Offener Realisierungswettbewerb

1. Preis

mit Happel Cornelisse Verhoeven, Rotterdam und Hild und K, Berlin

 

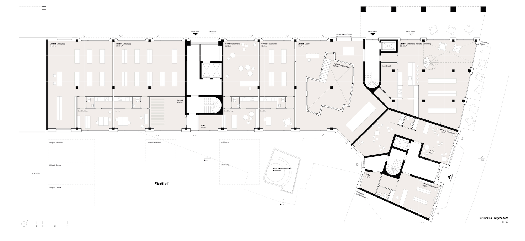
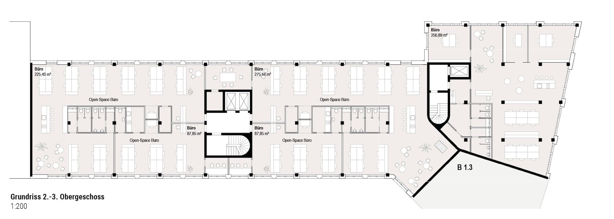
Die Senatsverwaltung für Stadtentwicklung, Bauen und Wohnen hatte in Kooperation mit der Wohnungsbaugesellschaft Berlin Mitte mbH (WBM) den Wettbewerb “Am Molkenmarkt Block B/1 Berlin Mitte” ausgelobt. Gemeinsam mit den Büros Happel Cornelisse Verhoeven, Rotterdam, und Hild und K, Berlin, freuen sich Modersohn & Freiesleben nun über den ersten Platz. Das Team konnte die Jury mit seinem Entwurf für die Bebauung des Planungsbereichs (Los) 1 überzeugen. Der Vorsitzende des Preisgerichts, Prof. Dr. Vittorio Magnago Lampugnani, lobte die ausgewählten und empfohlenen Projekte (insgesamt wurden drei Planungsbereiche bearbeitet) für die hervorragende Lösung der gegebenen Aufgabe: Sie „setzen sich klug und kreativ mit dem Anspruch auseinander, funktionale Gewerberäume und vor allem attraktive und bezahlbare Wohnungen mit großstädtischer Stadtreparatur in Einklang zu bringen. Sie legen innovative technische, wirtschaftliche, ökologische, soziale und ästhetische Lösungen vor. Das neue Stück Stadt, das hier entstehen wird, wird sich mit souveräner Selbstverständlichkeit in die Berliner städtebauliche und architektonische Tradition einfügen und sie mit frischen, zeitgemäßen Impulsen bereichern.“ Die Wettbewerbsentwürfe werden voraussichtlich ab Januar 2026 in einer öffentlichen Ausstellung präsentiert.

 

 

BGF: 9.226 m2

Mitarbeiterin: Sophia Grabow (Modersohn & Freiesleben), Theresa Klingler und Jonathan Bürgel (Hild und K), Ayhdee Gonzalez (Happel Cornelisse Verhoeven)

Beratende Fachplanung: Niehues Winkler Ingenieure (Tragwerksentwurf), GSE (Brandschutz)

Modellbau: Modersohn & Freiesleben

 

Veröffentlichungen: www.wettbewerbe-aktuell.de/ergebnis/am-molkenmarkt-block-b-1-berlin-mitte-367563